
TAN ZI CIN'S E-PORTFOLIO



click to enlarge
This project given was our first project for Design Communication course. This assessment allowed us for visualization and expression of space through on-site sketching. We were required to engage with the site by experiencing it through a spatial sequence of their choice and record their observation and perception of the spaces and the human habitation of these spaces through free-hand sketches. Besides, we were required to capture the aspects of the built environment within the site to demonstrate the understanding of space. For example: rhythm in architecture, details, light/shadow, textural effects, materials, landscape, scale and proportion.
For this project, I decided to do on-site sketching in Taylor's University Lakeside Campus as my theme project. The specific locations chosen in the campus were Silent study room, staircases between lakeside and unisquare, Ampitheater and balcony. From this project, I get to understand the notion of space in architecture better by doing on-site sketching and it helps to develop my skills in visualizing of space through observation and perception of the site I have chosen. I also realized the important of scale and proportion when I do my on-site sketching and get some improvement on my free hand sketching. On top of that, to make my sketches look more presentable I applied some rendering skills such as cross-hatching, hatching and scribbling to enhance the textural effect and the details of the space such as light sourse and texture.
PROJECT 1 (PART A)
ON-SITE SKETCHING
DESIGN COMMUNICATION (ARC 1713)
TUTOR: MS ZAHRA NAMAVAR

click to enlarge
The project 1B is designed to build upon the previous assignment which developing one’s skills in creating depth and tone in a sketch, and thus refining and enhancing the ability to produce an architectural sketch that is legible, we were required to produce four variations of a tonal values sketch. Examples of hatching types include stippling, cross-hatching, one-directional, scribbling and while the different media we may choose to use are artline pen, pencil or charcoal. The purpose of this assessment is to develop our skills in sketching such as sketch structure and toning, quality of lines, tones and composition, legibility / clarity of visualization and depiction of space and lastly the usage of different materials and tools.
For the first step for this assessment, we were required to pick an item. The object I chose to sketch is my watch. I find that this project is quite challenging as we have to understand the object's toning and shadows during sketching. From this project, I have learnt to develop my skills in communicating the above in various tonal and depth values. Also, there are various techniques of hatching through different medium that I have picked up from this assessment. Besides, I learnt to be patient while hatching especially for stippling as it had took some time but it came out more realistic in 3D rather than other hatching techniques. This attitude should be keep as an architecture student where I have to develop with to finish the drawings and produce an excellent outcome. I was enjoyed the process of hatching although it had took me for hours to complete sketches.
PROJECT 1 (PART B)
TONAL VALUE


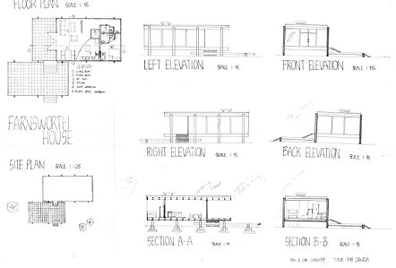
For this project, we were given an image of a building to be drawn up by using the skills demonstrated and explained in the workshops. In the first part of second project, we were requested to have a drawing on butter paper that consisting of floor plans, all sides of elevations of the building given and 2-cross sections view of the building to show the floor and roof construction. We are to incorporate the skills developed from the workshop esquisse (hand-lettering, orthographic and praline drawing, plan drawing) into this assessment. These drawings have to be of a standard appropriate architectural scale 1:75 on A1 paper.
In this project, I have learnt to record and present clear and legible architectural information manually. Besides, I was able to demonstrate drafting drawing skills in modern and traditional methods of architectural drawing. Also, while doing this project, I learnt to identify and apply architectural conventions and symbols. Furthermore, I have a better understanding on the quality of line weights and appropriate use of techniques and scale. Along this assessment, I was able to demonstrate gained knowledge, skills and understanding of orthographic projections in architectural documentation.
PROJECT 2 (PART A)
ORTHOGRAPHICS PROJECTION: PLANS, ELEVATIONS, AND SECTIONS

click to enlarge
Axonometric drawing is an excellent method of communicating and expressing an architectural idea. After drawing orthographic, we were able to learn how to execute an axonometric projection by generating partial of an external and sectional or internal axonometric. We have to refer to our orthographic drawings and the documents for measurements and information throughout this project.
In this assessment, I was able to generate axonometric drawings and communicate the understanding of architectural details and spatial value accurately. Also, I learnt on using technical pens to show the quality and understanding of different line weights in drawing Farnsworth House. I was enjoyed the process of producing the drawing of axonometric as my interior is simple to understand and it was fun to find out the accurate proportions of furniture according to human scale, became my favourite part in architecture drawings.
PROJECT 2 (PART B)
AXONOMETRIC PROJECTION
click to enlarge


The project 2C introduces perspective as a mode of communication in architecture. We were required to construct one exterior in 2 points perspective followed by one sectional perspective in one point. In constructing both these perspectives, you are to demonstrate the ability to express spatial idea in 3-D form, understanding of 2-D and 3-D relationships in architectural graphics, skills in drawing and composition, creativity and complexity of drawing. Also, your selection of space and exterior form is significant.
From this assessment, I am able to express a better spatial ideas and architectural detail in three-dimension, in the format of one-point and two-point perspectives. This assessment gave me a huge understanding of what perspectives are and how to generate them and how to apply them to the design process and presentation.
PROJECT 2 (PART C)
PERSPECTIVES

click to enlarge
Conclusion
In conclude, I found that the skills in manual drawing is important for students as beginner to be an architect as it is a basic techniques to produce sketches in minutes or seconds as if the ideas came into our mind. Along this subject, my techniques in sketching and drafting has improved and learnt more knowledge in rendering and hatching, also to be able to produce architecture drawings such as projection of orthographic, axonometric and perspectives drawing. Besides, I have a better and deeper understanding of the quality of line weight which can apply on other projects as well. Even The manual drawings will not be used in next semester and digital drawing will replace them, the basic knowledge in scale and proportion should be remember and applied in future subjects.